Герметичные наружные люки для выхода на кровлю жилого дома, административных зданий, производственно-складских сооружений предназначены для:
- инспектирования, ремонта кровельного покрытия,
- производства работ по очистке крыши от снега и наледи,
- установки, осмотра инженерного оборудования и сетей,
- подъема личного состава пожарных подразделений МЧС.
- подобрать размерные значения (ШхДхВ) люка для выхода на плоскую крышу и сопутствующей приставной лестницы под раздел проекта устройства кровли по нормам СНиП;
Важное отличие: размеры семейства ЛАЗ даны по проему в свету, а модели Небоскреб - по внешним габаритам коробки: используйте фильтры! - изучить чертежи dwg, проработать типовые узлы с привязкой к проему, перекрытию и гидроизоляции кровли;
- посмотреть детальные фото корпуса и элементов конструкции;
- просчитать цену за единицу продукции в выбранной комплектации, стоимость перевозки транспортной компанией в жесткой упаковке со страховкой до терминала в Вашем городе;
- купить выбранную модель с доставкой по России с сертификатами и паспортами для исполнительной документации.
Изготовим и доставим до объекта в Махачкале лаз в комплекте с лестницей на крышу
под заказ по индивидуальным размерам до 1000х2200п согласно Вашего технического задания. Позвоните нам или напишите на почту, обращайтесь по What's up для оперативной консультации!
Базовые характеристики люков на кровлю компании Горячая линия
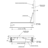
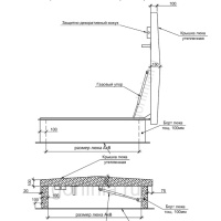
- Крышка с вылетом за габарит корпуса поднята над уровнем кровельного покрытия минимум на 300 мм по гост для влагозащиты в сезон схода талых вод, а также при ливневых дождях;
- Стенки и створка теплоизолированы для защиты от промерзания, противопожарной подготовки 2 типа EI60;
- Откидные дверцы двухскатной и арочной форм рассчитаны под естественный отвод с поверхности осадков и наростов льда, лишены дополнительной снеговой нагрузки при толкании механизма снизу.
- Удобный замок, продуманный механизм открывания на петлях со вспомогательными газовыми пружинами для подъема по стремянке с лестничной клетки.



